ULSTEINVIK

Hovsetlia 4

HOVSET – BUD MOTTATT – Innhaldsrikt rekkehus over to plan med garasje. Barnevennlig og populært boligområde
Kr4 490 000,-

Velkommen til Hovsetlia 4!

Oppgradert og velholdt rekkehus over to plan med garasje integrert i boligen.
Eigedomen ligg i populært og barnevennlig boligområde med nærheit til både natur og kvardagsfasiliteter.
Tomta er skråned, sørvendt og pent opparbeidd med betongplatt, støttemurar i betong og naturstein, treterrasser, skifer, levegger, plen og beplantning.
Asfaltert innkøyring og gode parkeringsforhold. Svært gode solforhold og fin utsikt.
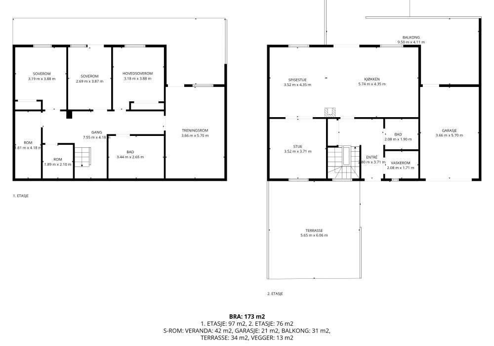
Boligen går over to plan m/følgande innhald: U.etg.: Gang, stue, tre soverom, bad og to boder. 1.etg.: Gang, stue, kjøkken, baderom, vaskerom og garasje.
Denne boligen bør sjåast!

Velkommen til visning!

Eigedom
Rekkehus
Etasjar
2
Byggeår
2006
Soverom
3
Bad
2
P-rom
186
Fasilitetar
Skrående flat terrassert sørvendt tomt. Tomtearealet er opparbeidet med betong platt, forstøtningsmur av forskallingsblokker med betong og naturstein, tre-terrasse, betongplatt med skifer, levegger og rekkverk av tre malt, plen og beplanting. Tomtens innkjørsel og parkeringsarealer med toppdekke av asfalt. Tomten har utsikt og gode solforhold.
Tomt
410.3
Om eigedomen
Velkommen til Hovsetlia 4! Oppgradert og velholdt rekkehus over to plan med garasje integrert i boligen. Eigedomen ligg i populært og barnevennlig boligområde med nærheit til både natur og kvardagsfasiliteter. Tomta er skråned, sørvendt og pent opparbeidd med betongplatt, støttemurar i betong og naturstein, treterrasser, skifer, levegger, plen og beplantning. Asfaltert innkøyring og gode parkeringsforhold. Svært gode solforhold og fin utsikt. Boligen går over to plan m/følgande innhald: U.etg.: Gang, stue, tre soverom, bad og to boder. 1.etg.: Gang, stue, kjøkken, baderom, vaskerom og garasje. Denne boligen bør sjåast! Velkommen til visning!