VOLDA

Storgata 2A

Kombinasjonsbygg med sentral beliggenhet i Volda sentrum – næringslokaler og romslig leilighet over to plan
Kr2 190 000,-

Velkommen til Storgata 2A i hjertet av Volda sentrum!

Her finner du et kombinasjonsbygg med tre næringslokaler på gateplan og en stor leilighet over to etasjer. Eiendommen har god eksponering mot hovedgata og kort avstand til butikker, servicetilbud og kollektivtransport. To av næringslokalene er utleid, mens det tredje står klart for videre utvikling.

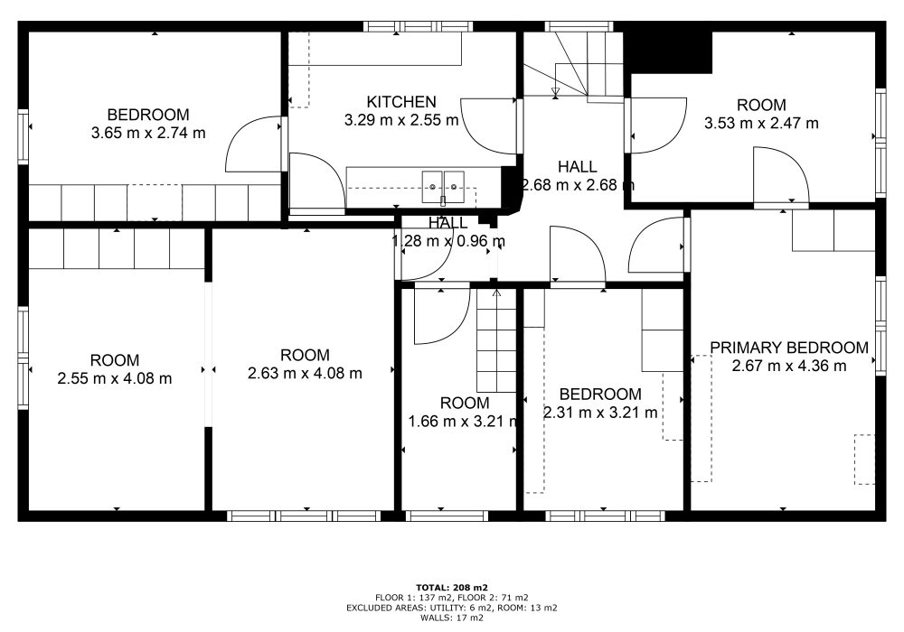
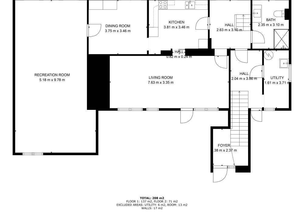
Leiligheten strekker seg over to etasjer og inneholder blant annet romslig stue, kjøkken, bad og flere soverom, med potensial for oppgradering og fleksibel bruk. Tomten har egen bakgård med enkel adkomst og et lagerskur.

En eiendom med mange muligheter, både for utleie og egen virksomhet.

Velkommen til visning!

Eigedom
Næringseiendom
Etasjar
3
Byggeår
1922
Soverom
5
Bad
1
P-rom
398
Fasilitetar
Tomten er opparbeidet med støpt fortau mot Storgata. Bak bygget med tilkomst mellom byggene er en bakhage med tidligere plen og noen trær. Inntil bygget er det satt opp et åpent enkelt. lagerskur. Tomten bærer preg av lite stell, opprydding må påregnes.
Tomt
856.5
Om eigedomen
Velkommen til Storgata 2A i hjertet av Volda sentrum! Her finner du et kombinasjonsbygg med tre næringslokaler på gateplan og en stor leilighet over to etasjer. Eiendommen har god eksponering mot hovedgata og kort avstand til butikker, servicetilbud og kollektivtransport. To av næringslokalene er utleid, mens det tredje står klart for videre utvikling. Leiligheten strekker seg over to etasjer og inneholder blant annet romslig stue, kjøkken, bad og flere soverom, med potensial for oppgradering og fleksibel bruk. Tomten har egen bakgård med enkel adkomst og et lagerskur. En eiendom med mange muligheter, både for utleie og egen virksomhet. Velkommen til visning!