SKODJE

Brusdalsvegen 557

BRUSDALEN – Velholdt og oppgradert enebolig m/fin utsikt. Beliggende i rolige omgivelser
Kr3 990 000,-

Velkommen til Brusdalsvegen 557

Her finner du denne velholdte eneboligen over 2 plan i rolige omgivelser i Brusdalen.
Boligen har de senere åra blitt oppgradert med bla. nytt tak, undertak og takrenner i 2017. Noen nyere vindu fra 2018 i pvc. Kjøkkenet ble pusset opp i 2017. Ny vv-bereder i 2022. Det medfølger både varmepumpe og vedovn. En god del innvendige overflater er oppusset i perioden 2017-2022.
Eiendommen ligger veldig fint til i enden av en blindveg, under 10 minutter med bil til Moa. Gode solforhold og flott utsikt mot Brusdalsvannet og naturen rundt.
Romslig parkeringsplass på tomten og i garasje.
Gjennomgående fin bolig som du kan flytte rett inn i.

PÅMELDINGSVISNING: Interessenter må melde seg på via nettsider eller direkte til megler.

Eigedom
Frittliggende enebolig
Etasjar
2
Byggeår
1989
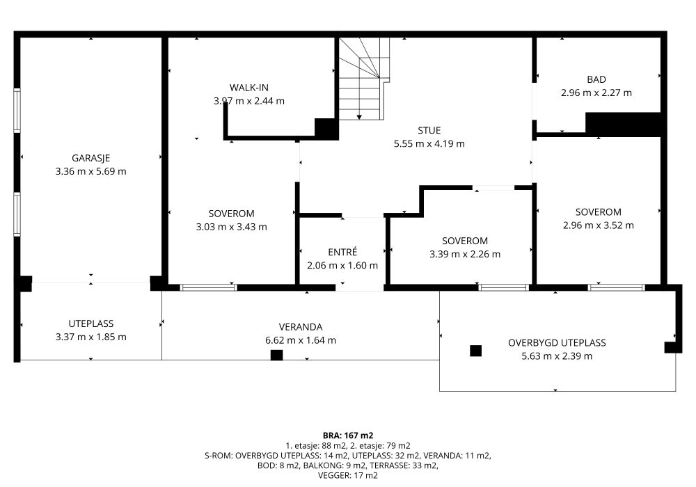
Soverom
3
Bad
1
P-rom
180
Fasilitetar
Eiendommen ligger i lett skrånende terreng og tomten er pent opparbeidet med gruset biloppstillingsplass, belegningsstein, forstøtningsmurer og plenarealer med diverse beplanting av trær, prydbusker og blomsterbed.
Tomt
1698.2
Om eigedomen
Velkommen til Brusdalsvegen 557 Her finner du denne velholdte eneboligen over 2 plan i rolige omgivelser i Brusdalen. Boligen har de senere åra blitt oppgradert med bla. nytt tak, undertak og takrenner i 2017. Noen nyere vindu fra 2018 i pvc. Kjøkkenet ble pusset opp i 2017. Ny vv-bereder i 2022. Det medfølger både varmepumpe og vedovn. En god del innvendige overflater er oppusset i perioden 2017-2022. Eiendommen ligger veldig fint til i enden av en blindveg, under 10 minutter med bil til Moa. Gode solforhold og flott utsikt mot Brusdalsvannet og naturen rundt. Romslig parkeringsplass på tomten og i garasje. Gjennomgående fin bolig som du kan flytte rett inn i. PÅMELDINGSVISNING: Interessenter må melde seg på via nettsider eller direkte til megler.