KVAMSØY

Ristesundvegen 4

BUD MOTTATT – Kvamsøya – Romslig eiendom med utsikt og potensial
Kr1 090 000,-

Velkommen til Risteundvegen 4!

Et innbydende småbruk med nydelig utsikt mot fjord og fjell. Eiendommen ligger like ovenfor fergekaia på Kvamsøy i Sande kommune, og byr på et areal på hele 10,9 dekar. Av dette er ca. 1,9 dekar tomt, 3,2 dekar fulldyrka mark og 5,6 dekar innmarksbeite hvor 8,8 dekar er avsatt til fremtidig boligformål i kommunedelplanen.

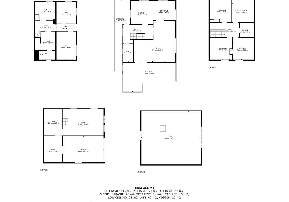
Eneboligen går over tre plan med flere soverom, to bad, romslig stue og kjeller med blant annet hjemmekino og vaskerom. Garasje/verksted over to plan gir gode lagrings- og hobbymuligheter. Opparbeidet tomt med gruset innkjørsel og hage med plen på nedsiden, for øvrig naturtomt med landlig og fredelig atmosfære.

Velkommen til visning!

Eigedom
Frittliggende enebolig
Etasjar
3
Byggeår
1955
Soverom
6
Bad
2
P-rom
358
Fasilitetar
Tomten har flott utsikt mot fjord og fjell, opparbeidet med gruset innkjørsel til huset og garasjen. Hage med plen på nedsiden av huset. Forøvrig naturtomt.
Tomt
10960.3
Om eigedomen
Velkommen til Risteundvegen 4! Et innbydende småbruk med nydelig utsikt mot fjord og fjell. Eiendommen ligger like ovenfor fergekaia på Kvamsøy i Sande kommune, og byr på et areal på hele 10,9 dekar. Av dette er ca. 1,9 dekar tomt, 3,2 dekar fulldyrka mark og 5,6 dekar innmarksbeite hvor 8,8 dekar er avsatt til fremtidig boligformål i kommunedelplanen. Eneboligen går over tre plan med flere soverom, to bad, romslig stue og kjeller med blant annet hjemmekino og vaskerom. Garasje/verksted over to plan gir gode lagrings- og hobbymuligheter. Opparbeidet tomt med gruset innkjørsel og hage med plen på nedsiden, for øvrig naturtomt med landlig og fredelig atmosfære. Velkommen til visning!