Velkomen til Storgata 8
Her finn du denne innhaldsrike næringseigedomen over 3 plan med sentral og fin beliggenheit i sentrum av Volda.
Store deler av eigedomen er utleigd, men fortsatt noko ledig og potensiale for høgare leigeinntekter.
Dagens leigeinntekter er på ca kr 600.000,- pr år. Potensiale for ca kr 900.000,-
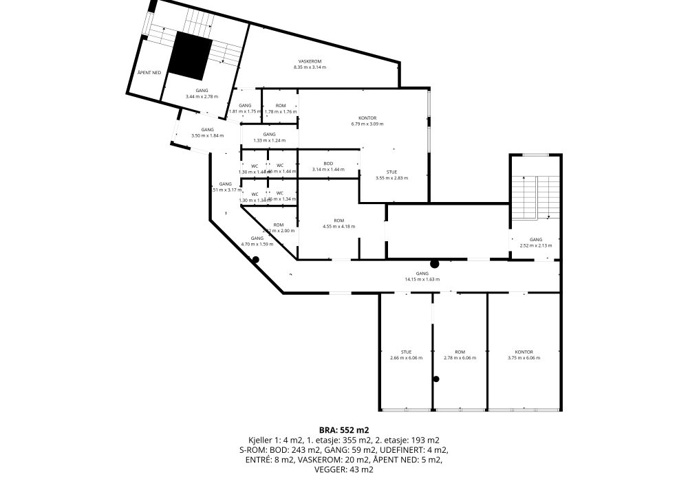
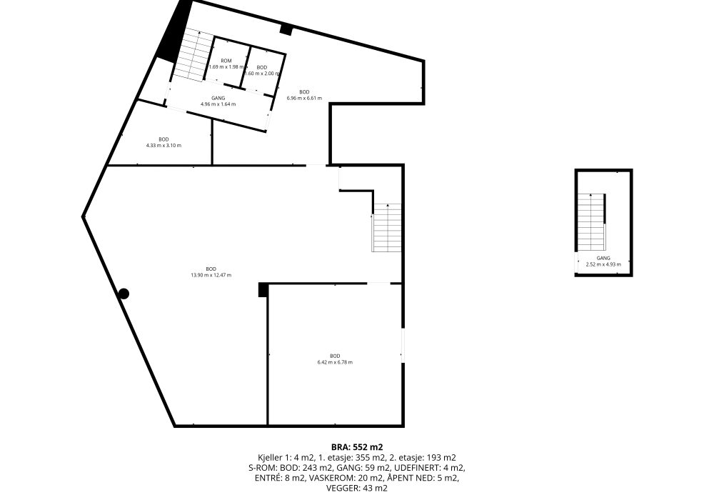
BTA på 910 kvm. Kjeller ca 379 BTA. 1.etg. 373 kvm. og 2.etg. 158 kvm.BTA.
Bygningsmassen er oppført i tidstypisk byggestil og har bærende konstruksjoner i stedstøpt
betong i vegger, søyler og dekker. Deler av fasader er i bindingsverk og kledt med steniplater,
men noe eksponert betong. Vindusfelter i aluminium og PVC. Det er bygget heisesjakt, men
heis er ikke montert. Elektrisk oppvarming, nytt balansert ventilasjonsanlegg. Interiørmessig
har bygningen normalt god standard.
Det foreligger tidligare dispensasjon som åpner for mulig påbygg av 3. etasje.
Ta kontakt med megler for avtale om visning.






































