ÅLESUND

Alvikvegen 404

BUD MOTTATT – Landlig fritidsbolig med nausttomt – romslig eiendom med stall, anneks og uthus
Kr2 290 000,-

Velkommen til Alvikvegen 404!

Eiendommen ligger landlig til i Alvika, ca. 6 km fra Moa, og består av en eiet tomt på 1.524,5 kvm opparbeidet med plen, beplantning, gruset gårdsplass og delvis naturtomt. På eiendommen følger også en nausttomt på ca. 71 kvm.

Bebyggelsen består av fritidsbolig over tre plan med tilbygd stall, samt anneks, bod, carport og uthus. Boligen har de senere årene vært benyttet som helårsbolig, men er registrert som fritidsbolig.

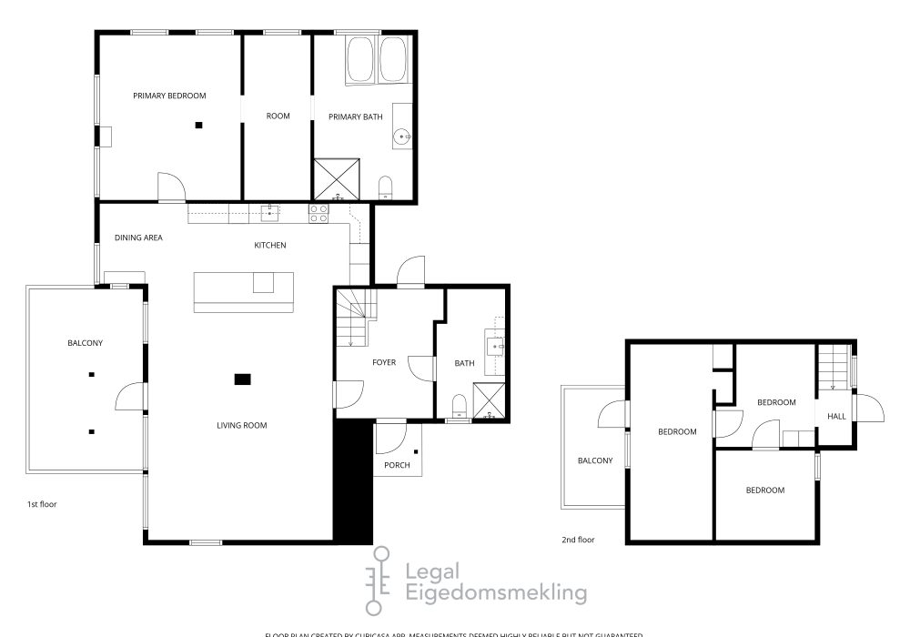
Fritidsboligen inneholder blant annet entré, kjøkken, to stuer, tre soverom, to bad/vaskerom, samt kjeller med stall, bod og teknisk rom.

Velkommen til visning!

Eigedom
Fritidsbolig
Etasjar
3
Byggeår
1945
Soverom
3
Bad
2
P-rom
229
Fasilitetar
Eiet tomt på 1.524,5 kvm som er opparbeidet med noe plen, beplantning og gruset gårdsplass samt dels naturtomt. I arealet ligger det også en nausttomt som er på ca 71 kvm.
Tomt
1524.5
Om eigedomen
Velkommen til Alvikvegen 404! Eiendommen ligger landlig til i Alvika, ca. 6 km fra Moa, og består av en eiet tomt på 1.524,5 kvm opparbeidet med plen, beplantning, gruset gårdsplass og delvis naturtomt. På eiendommen følger også en nausttomt på ca. 71 kvm. Bebyggelsen består av fritidsbolig over tre plan med tilbygd stall, samt anneks, bod, carport og uthus. Boligen har de senere årene vært benyttet som helårsbolig, men er registrert som fritidsbolig. Fritidsboligen inneholder blant annet entré, kjøkken, to stuer, tre soverom, to bad/vaskerom, samt kjeller med stall, bod og teknisk rom. Velkommen til visning!