ÅLESUND

Hessavegen 54

HESSA – Særegen og oppgradert enebolig over 3 plan m/nydelig utsikt.
Kr3 590 000,-

Velkommen til Hessavegen 54

Her finner du denne særegne eneboligen i et populært og etablert boligområde på Hessa.
Murhus over 3 plan som har blitt betydelig oppgradert dei siste 10-15 åra.
Huset er leigd ut med samme leietaker siden 2017. Du kan enten ta over eksisterende leieavtale, eller si opp og flytte inn selv.
Flott eiendom som du bør se på.

PÅMELDINGSVISNING: Interessenter må ta kontakt med megler for avtale om visning, eller melde seg på via «påmeldingsknapp» på nettsidene.

Eigedom
Frittliggende enebolig
Etasjar
3
Byggeår
1911
Soverom
5
Bad
3
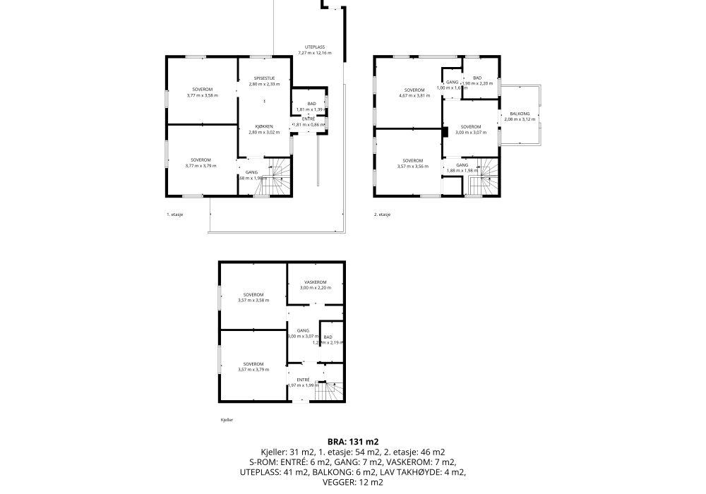
P-rom
180
Fasilitetar
Det er trappeadkomst til boligen fra Hessavegen med støpte trapper på østsiden av boligen. Det er inngang til boligens underetasje fra øst og videre støpt trapp til inngang bolig fra nord. Det er støpte murer langs trapp mot tilstøtende terreng mot øst og nord. Det er støpt platting mellom bolig og mur mot nord. Uthus/uteboder på nordvestsiden av boligen. Det er støpt trapp fra loftsetasje til bakkenivå nord. Det er forholdsvis brann tomt i bakkant mot fjellet. Det er etablert trapper med naturstein til treterrasse bygget av leietaker. På vestsiden og dels sørsiden er der et lite grøntareal. Det er oppført en garasje i tomtegrense sørvest. Det er etablert biloppstillingsplass for 3 biler ved siden av garasjen – støpt betongmurer rundt.
Tomt
414.5
Om eigedomen
Velkommen til Hessavegen 54 Her finner du denne særegne eneboligen i et populært og etablert boligområde på Hessa. Murhus over 3 plan som har blitt betydelig oppgradert dei siste 10-15 åra. Huset er leigd ut med samme leietaker siden 2017. Du kan enten ta over eksisterende leieavtale, eller si opp og flytte inn selv. Flott eiendom som du bør se på. PÅMELDINGSVISNING: Interessenter må ta kontakt med megler for avtale om visning, eller melde seg på via «påmeldingsknapp» på nettsidene.