ELLINGSØY

Leirvikvegen 23

BUD MOTTATT – ELLINGSØY – Enebolig med utleiedel | Garasje | Solrik tomt | Barnevennlig område på Ellingsøya
Kr5 590 000,-

Velkommen til Leirvikvegen 23!

Arkitekttegnet enebolig fra 1989 beliggende i etablert og barnevennlig boligområde i Leirvikvegen på Ellingsøya. Boligen går over fire plan og er tilpasset skrånende terreng, med gode sol- og lysforhold. Eiendommen er pent opparbeidet med asfaltert innkjørsel, plenarealer, støpte trapper og variert beplantning med trær, frukttrær og prydbusker. Boligen er registrert med to boenheter og har en innredet utleieleilighet i underetasjen. Kort avstand til barnehage, barneskole, nærbutikk og flotte turområder. Garasje på eiendommen.

Velkommen til visning!

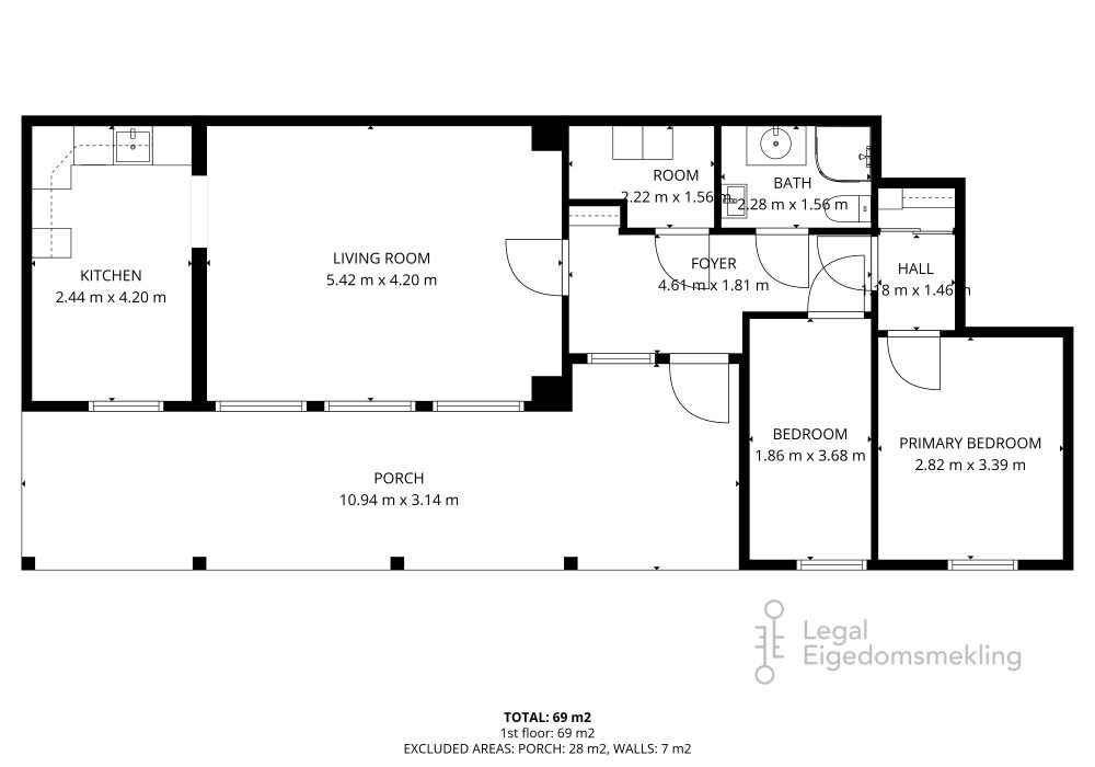
Eigedom
Enebolig m/hybel/sokkelleilighet
Etasjar
4
Byggeår
1989
Soverom
6
Bad
3
P-rom
351
Fasilitetar
Eiendommen ligger i skrånende terreng og tomten er opparbeidet med asfaltert innkjørsel og biloppstillingsplass, forstøtningsmurer, støpte trapper og plattinger, plenarealer og diverse beplanting med trær, frukttrær, prydbusker og blomsterbed. Det er oppført en garasje på eiendommen.
Tomt
1079.6
Om eigedomen
Velkommen til Leirvikvegen 23! Arkitekttegnet enebolig fra 1989 beliggende i etablert og barnevennlig boligområde i Leirvikvegen på Ellingsøya. Boligen går over fire plan og er tilpasset skrånende terreng, med gode sol- og lysforhold. Eiendommen er pent opparbeidet med asfaltert innkjørsel, plenarealer, støpte trapper og variert beplantning med trær, frukttrær og prydbusker. Boligen er registrert med to boenheter og har en innredet utleieleilighet i underetasjen. Kort avstand til barnehage, barneskole, nærbutikk og flotte turområder. Garasje på eiendommen. Velkommen til visning!